




Development Land in Park Drive for Sale - £250,000
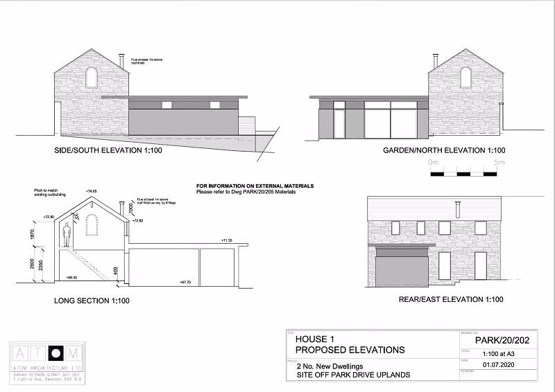
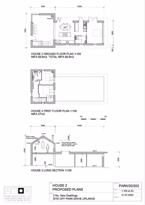
Development plot with planning (Ref: 2023/1885/S73) for two contemporary three-bedroom detached homes, located off Park Drive (rear of Glanmor Court), Uplands, Swansea SA2. Prime infill site in a sought-after postcode, backing onto Cwmdonkin Park and close to the coastline, local schools, ameniti...
Development Land in Park Drive for Sale - £250,000
Description
Development plot with planning (Ref: 2023/1885/S73) for two contemporary three-bedroom detached homes, located off Park Drive (rear of Glanmor Court), Uplands, Swansea SA2. Prime infill site in a sought-after postcode, backing onto Cwmdonkin Park and close to the coastline, local schools, ameniti...
Contact Agent
Smart Picks — Professionals Relevant to This Land
Based on this property's key features, here are the specialists you may want to consult as part of your due diligence: land agents, rural solicitors, planning consultants and rics surveyors.

Land Agents
Essential for navigating the land market, finding buyers, and securing the best price.

Rural Solicitors
Significant investment (£250K+) requires legal expertise for conveyancing, title checks, and transaction security.

Planning Consultants
Planning-sensitive site needs expert guidance for applications and development strategy.

RICS Surveyors
Prime or productive land requires professional valuation to ensure fair market value.
Location
Park Drive